Ir para o conteúdo
Home
Sobre Nós
Projetos
Blog
Contato
Home
Sobre Nós
Projetos
Blog
Contato
Icon-facebook
Icon-instagram-1
Home
Sobre Nós
Projetos
Faça seu Orçamento
Blog
Contatos
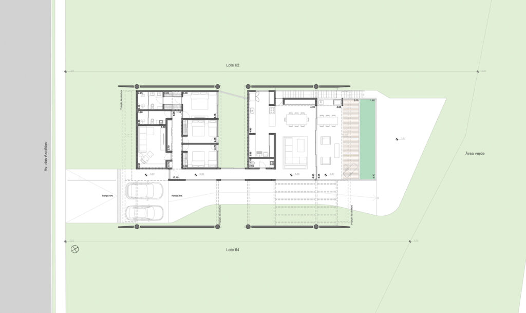
Casa Rochedos
350 m² | Cabreuva-SP
Nos envie uma mensagem!
Preencha para baixar nosso portfólio
Nome
Telefone
Enviar